火头山 Katousan

2017-02-19 21:13:05

火头山拉面恒隆店

火头山建筑外景

火头山室内

火头山

火头山建筑外景

火头山建筑外景

火头山餐饮设计

火头山餐饮设计

火头山餐饮设计

火头山餐饮设计

火头山

火头山

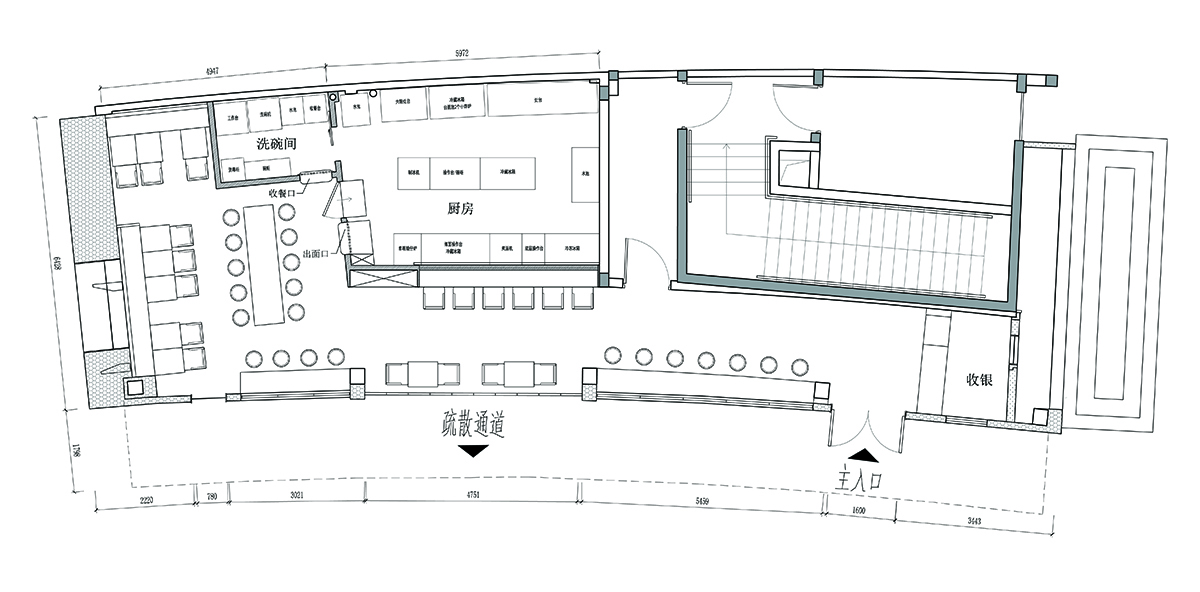
火头山平面图